フェア阿佐ヶ谷
フェアアサガヤ※表示写真は、建物の外観写真・共用部分の写真を除き、同じ建物内のお部屋を一例として表示しています。写真に家具等の家財がある場合も、イメージ図となります。詳細は、お問い合わせのうえご確認下さい。
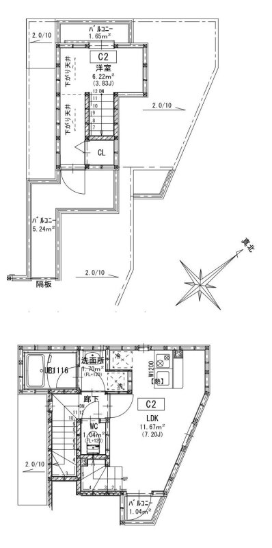
- 1LDK / 30.87m²~
- 杉並区阿佐谷南2-5-14
- JR中央線「阿佐ケ谷」駅 徒歩8分
- 東京メトロ丸ノ内線「南阿佐ケ谷」駅 徒歩11分
-
参考賃料120,000円~125,000円
記載されている参考賃料は、独自で調査した賃料です。
間取りタイプによって異なりますので、最新情報は直接お問い合わせ下さいませ。※こちらのサイトは建物紹介サイトとなっております。
お部屋の空室や詳しいご内容に関しては、最新情報を確認の上ご説明させていただきます。
直接お問い合わせください。
この物件の特徴
この物件の設備
物件概要
| 物件種別 | 賃貸アパート |
|---|---|
| 間取り・専有面積 | 1LDK / 30.87m²~ |
| 築年月 | 2024年05月 |
| 規模・構造 | 木造 3階建て |
| 駐車場 | |
| 保険 | 18000円~ / 2年 |
| 保証金 | 1ヶ月 |
| 償却 | |
| 設備 | オートロック , 光ファイバー対応 , 宅配ボックス , 追焚き機能付 , オートバス , 浴室換気乾燥機 , ウォシュレット , 玄関ダブルロック , ディンプルキー , 独立洗面台 , 脱衣室 , バストイレ別 |
| 特徴 | 二人入居可 , 保証人不要 , インターネット無料 , 1DK以上 , 築浅 |
| 取引態様 | 媒介 |
| 自社物件番号 | C-5662 |
- ※当サイトは、建物に関するサイトとなっております。
条件等は、お部屋ごとに異なる場合がございますので、お部屋の事に関しては、必ず募集条件を直接ご確認ください - ※分譲賃貸マンションの場合、お部屋によって家賃・管理費・敷金・礼金など賃貸借契約に関する設定が様々です。各所有者様によって、設備・仕様・内装などが変更されている場合もございます。
- ※ペット飼育やSOHO利用の可否に関しては、建物の管理規約で可能になっていても、お部屋の所有者様によって禁止の場合もございますのでご注意下さい。
- 詳細はお電話、メール、LINEにてスタッフまでご相談下さい。










★独立洗面台★温水洗浄便座★
★☆★建物の特徴★☆★
モニター付きオートロック/宅配ボックス/エレベーター/防犯カメラ/ディンプルキー/ゴミ置き場
★☆★お部屋の特徴★☆★
システムキッチン/バス・トイレ別/独立洗面台/追い焚き機能/脱衣所/洗濯機室内/浴室乾燥機/温水洗浄便座/クローゼット/シューズボックス/照明/フローリング/バルコニー/エアコン/モニター付きインターホン/24時間換気システム
(※上記は部屋により異なる場合がございます)
★☆★近くのお店★☆★
セブンイレブン350m/ピーコックストア600m
★☆★近くの道路★☆★
馬橋通り
杉並区阿佐谷南2丁目、JR中央線 『阿佐ケ谷駅』 徒歩8分の高級アパート「FAIR阿佐ヶ谷」
安心のTVモニター付きオートロックに24時間荷物の受け取り可能な宅配BOX付き、室内設備はバス・トイレ別、浴室乾燥機、追い焚き機能、温水洗浄便座と優れた室内設備。
インターネット無料物件も多数ご紹介可能で、キャバクラ・ナイトワーク・夜職の審査も柔軟に対応可能。