ジェノヴィア青砥スカイガーデン
ジェノヴィアアオトスカイガーデン※表示写真は、建物の外観写真・共用部分の写真を除き、同じ建物内のお部屋を一例として表示しています。写真に家具等の家財がある場合も、イメージ図となります。詳細は、お問い合わせのうえご確認下さい。
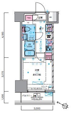
- 1K / 22.05m²~
- 葛飾区青砥6-5-4
- 京成本線「青砥」駅 徒歩5分
- 京成本線「京成高砂」駅 徒歩13分
-
参考賃料77,500円~85,000円
記載されている参考賃料は、独自で調査した賃料です。
間取りタイプによって異なりますので、最新情報は直接お問い合わせ下さいませ。※こちらのサイトは建物紹介サイトとなっております。
お部屋の空室や詳しいご内容に関しては、最新情報を確認の上ご説明させていただきます。
直接お問い合わせください。
この物件の特徴
この物件の設備
物件概要
| 物件種別 | 賃貸マンション |
|---|---|
| 間取り・専有面積 | 1K / 22.05m²~ |
| 築年月 | 2022年08月 |
| 規模・構造 | 鉄筋コンクリート造 14階建て |
| 駐車場 | |
| 保険 | 18000円~ / 2年 |
| 保証金 | |
| 償却 | |
| 設備 | オートロック , 光ファイバー対応 , 宅配ボックス , 浴室換気乾燥機 , ウォシュレット , 玄関ダブルロック , 独立洗面台 , 脱衣室 , バストイレ別 |
| 特徴 | 敷金・礼金0 , ペット相談可 , 分譲賃貸 , 保証人不要 , インターネット無料 , 築浅 |
| 取引態様 | 媒介 |
| 自社物件番号 | I-1426 |
- ※当サイトは、建物に関するサイトとなっております。
条件等は、お部屋ごとに異なる場合がございますので、お部屋の事に関しては、必ず募集条件を直接ご確認ください - ※分譲賃貸マンションの場合、お部屋によって家賃・管理費・敷金・礼金など賃貸借契約に関する設定が様々です。各所有者様によって、設備・仕様・内装などが変更されている場合もございます。
- ※ペット飼育やSOHO利用の可否に関しては、建物の管理規約で可能になっていても、お部屋の所有者様によって禁止の場合もございますのでご注意下さい。
- 詳細はお電話、メール、LINEにてスタッフまでご相談下さい。







★保証人不要★水商売相談可★
★☆★建物の特徴★☆★
BS/CS/公共下水/給湯/分譲/モニター付きオートロック/宅配ボックス/エレベーター/防犯カメラ/光ファイバー/インターネット無料
★☆★お部屋の特徴★☆★
システムキッチン/バス・トイレ別/浴室換気乾燥暖房機/フローリング/エアコン/室内洗濯機置き場/バルコニー/温水洗浄便座/独立洗面台/モニター付きインターホン/クローゼット/ペット可/シューズインクローゼット/照明
(※上記は部屋により異なる場合がございます)
★☆★近くのお店★☆★あさ
ローソン90m/セブンイレブン400m
★☆★近くの道路★☆★
環七通り
人気シリーズ系デザイナーズマンション『GENOVIA青砥skygarden』のご紹介です。
京成本線『青砥駅』徒歩5分。京成本線『京成高砂駅』も徒歩13分の好立地。
ネット環境の整った、駅近の1Kの部屋です。
独立洗面台や浴室乾燥機、共用部には宅配ボックスなど生活を快適にサポートしてくれる設備が揃っており、ペットも飼育可能なので愛するペットと一緒に暮らせます。