ズーム志村坂上
ズームシムラサカウエ※表示写真は、建物の外観写真・共用部分の写真を除き、同じ建物内のお部屋を一例として表示しています。写真に家具等の家財がある場合も、イメージ図となります。詳細は、お問い合わせのうえご確認下さい。
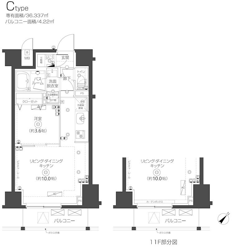
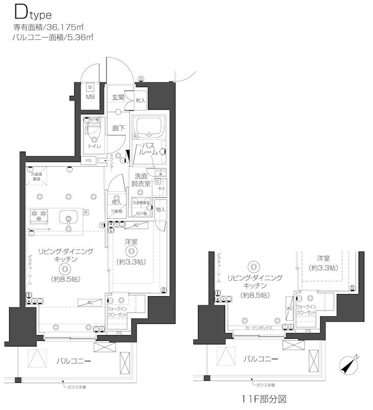
- 1LDK / 36.17m²~
- 板橋区小豆沢1-13-2
- 都営三田線「志村坂上」駅 徒歩4分
- 都営三田線「本蓮沼」駅 徒歩9分
-
参考賃料118,000円~128,000円
記載されている参考賃料は、独自で調査した賃料です。
間取りタイプによって異なりますので、最新情報は直接お問い合わせ下さいませ。※こちらのサイトは建物紹介サイトとなっております。
お部屋の空室や詳しいご内容に関しては、最新情報を確認の上ご説明させていただきます。
直接お問い合わせください。
この物件の特徴
この物件の設備
物件概要
| 物件種別 | 賃貸マンション |
|---|---|
| 間取り・専有面積 | 1LDK / 36.17m²~ |
| 築年月 | 2022年02月 |
| 規模・構造 | 鉄筋コンクリート造 11階建て |
| 駐車場 | |
| 保険 | 18000円~ / 2年 |
| 保証金 | |
| 償却 | |
| 設備 | オートロック , 光ファイバー対応 , 宅配ボックス , 追焚き機能付 , 浴室換気乾燥機 , ディンプルキー , 脱衣室 , バストイレ別 |
| 特徴 | デザイナーズ , ペット相談可 , 二人入居可 , 分譲賃貸 , 保証人不要 , インターネット無料 , 1DK以上 , 築浅 |
| 取引態様 | 媒介 |
| 自社物件番号 | C-8480 |
- ※当サイトは、建物に関するサイトとなっております。
条件等は、お部屋ごとに異なる場合がございますので、お部屋の事に関しては、必ず募集条件を直接ご確認ください - ※分譲賃貸マンションの場合、お部屋によって家賃・管理費・敷金・礼金など賃貸借契約に関する設定が様々です。各所有者様によって、設備・仕様・内装などが変更されている場合もございます。
- ※ペット飼育やSOHO利用の可否に関しては、建物の管理規約で可能になっていても、お部屋の所有者様によって禁止の場合もございますのでご注意下さい。
- 詳細はお電話、メール、LINEにてスタッフまでご相談下さい。
周辺環境
この物件に似たおすすめ物件
-

Nステージ本蓮沼
- 都営三田線「本蓮沼」駅 徒歩2分
- 1LDK / 35.56m²~
-
参考賃料
115,000円~121,000円
-

Nステージ本蓮沼
- 都営三田線「本蓮沼」駅 徒歩2分
- 1K / 28.27m²~
-
参考賃料
112,000円~121,000円
-

パレ・ホームズ常盤台
- 都営三田線「本蓮沼」駅 徒歩7分
- 1LDK / 34.31m²~
-
参考賃料
118,000円~138,000円
-

メインステージ本蓮沼
- 都営三田線「本蓮沼」駅 徒歩4分
- 2K / 29.25m²~
-
参考賃料
106,000円~120,000円
-

ハイズノース東京レジデンス
- JR埼京線「北赤羽」駅 徒歩10分
- 1K / 25.97m²~
-
参考賃料
87,000円~120,000円














★保証人不要★水商売相談可★ペット相談可★
★☆★建物の特徴★☆★
モニター付きオートロック/宅配ボックス/駐輪場/エレベーター/敷地内ゴミ置場/防犯カメラ/都市ガス/公共下水/デザイナーズ/光ファイバー/24時間ゴミ出し可能/BS/CS
★☆★お部屋の特徴★☆★
システムキッチン/バス・トイレ別/浴室換気乾燥暖房機/フローリング/エアコン/室内洗濯機置き場/シューズボックス/2口コンロ/バルコニー/温水洗浄便座/独立洗面台/カラーモニター付きインターホン/ダブルロックキー/ウォークインクローゼット/最上階
(※上記は部屋により異なる場合がございます)
★☆★近くのお店★☆★
ローソン350m/セブンイレブン400m
★☆★近くの道路★☆★
中山道
板橋区小豆沢1丁目エリアに建つ賃貸マンション「ズーム志村坂上」のご紹介です。
2022年2月築、地上11階建て、総戸数39戸の鉄筋コンクリート造マンションです。
オートロックやモニター付インターホンがあるので防犯面も安心です。
住戸には、雨天時のお洗濯に便利な浴室乾燥機やウォークインクローゼット、エアコン、システムキッチン、独立洗面台など生活に便利な設備が完備されています。
共用部には宅配ボックスも完備で不在時でも24時間お荷物のお受け取りが可能なので、お忙しい方にもおすすめです。
駐輪場も完備で休日のお出かけやお買い物も気軽に楽しむことができるでしょう。