日神デュオステージ三ツ沢
ニッシンデュオステージミツサワ※表示写真は、建物の外観写真・共用部分の写真を除き、同じ建物内のお部屋を一例として表示しています。写真に家具等の家財がある場合も、イメージ図となります。詳細は、お問い合わせのうえご確認下さい。
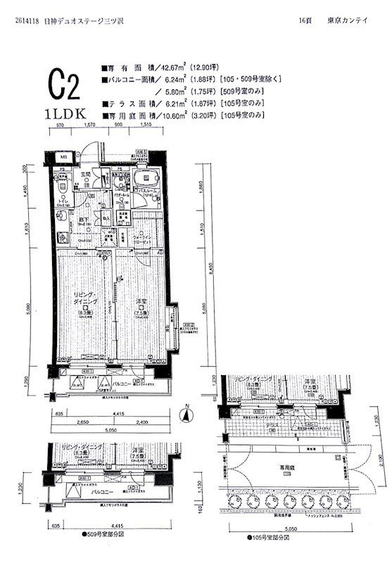
- 1LDK / 42.67m²~
- 横浜市神奈川区三ツ沢下町19-8
- 横浜市営ブルーライン三ッ沢下町徒歩10分
-
参考賃料115,000円~132,000円
記載されている参考賃料は、独自で調査した賃料です。
間取りタイプによって異なりますので、最新情報は直接お問い合わせ下さいませ。※こちらのサイトは建物紹介サイトとなっております。
お部屋の空室や詳しいご内容に関しては、最新情報を確認の上ご説明させていただきます。
直接お問い合わせください。
この物件の特徴
この物件の設備
物件概要
| 物件種別 | 賃貸マンション |
|---|---|
| 間取り・専有面積 | 1LDK / 42.67m²~ |
| 築年月 | 2006年09月 |
| 規模・構造 | 鉄筋コンクリート造 5階建て |
| 駐車場 | |
| 保険 | 20000円~ / 2年 |
| 保証金 | |
| 償却 | |
| 設備 | オートロック , 宅配ボックス , 脱衣室 , バストイレ別 |
| 特徴 | 敷金・礼金0 , 二人入居可 , 分譲賃貸 , 保証人不要 , 1DK以上 |
| 取引態様 | 媒介 |
| 自社物件番号 | MB-8811 |
- ※当サイトは、建物に関するサイトとなっております。
条件等は、お部屋ごとに異なる場合がございますので、お部屋の事に関しては、必ず募集条件を直接ご確認ください - ※分譲賃貸マンションの場合、お部屋によって家賃・管理費・敷金・礼金など賃貸借契約に関する設定が様々です。各所有者様によって、設備・仕様・内装などが変更されている場合もございます。
- ※ペット飼育やSOHO利用の可否に関しては、建物の管理規約で可能になっていても、お部屋の所有者様によって禁止の場合もございますのでご注意下さい。
- 詳細はお電話、メール、LINEにてスタッフまでご相談下さい。

















★水商売可★保証人不要★
★☆★建物の特徴★☆★
都市ガス/防犯カメラ/モニタ付オートロック/24時間ゴミ出し可/風除室/敷地内ゴミ置き場/宅配BOX/CATV/駐輪場/バイク置き場
★☆★お部屋の特徴★☆★
システムキッチン/2口コンロ/バス・トイレ別/独立洗面台/脱衣所/洗濯機室内/浴室乾燥機/温水洗浄便座/クローゼット/シューズボックス/ウォークインクローゼット/フローリング/バルコニー/エアコン/モニター付きインターホン/24時間換気システム
(※上記は部屋により異なる場合がございます)
★☆★近くのお店★☆★
ミニストップ450m/ローソン650m
★☆★近くの道路★☆★
横浜新道
★☆★水商売ペット可賃貸情報満載★☆★
水商売賃貸不動産みずべやにお任せください! 足立区・墨田区・荒川区・世田谷区・板橋区・台東区・江戸川区・千代田区・大田区・中央区・葛飾区・豊島区・北区・中野区・江東区・練馬区・品川区・文京区・渋谷区・港区・新宿区・目黒区・杉並区どこでもご紹介可能♪水商売・ナイトワーク・ホスト・風俗嬢・AV嬢・ボーイの皆様お部屋探しは水商売賃貸のプロ『みずべや』♪